Grundrisse
Gebäudedaten
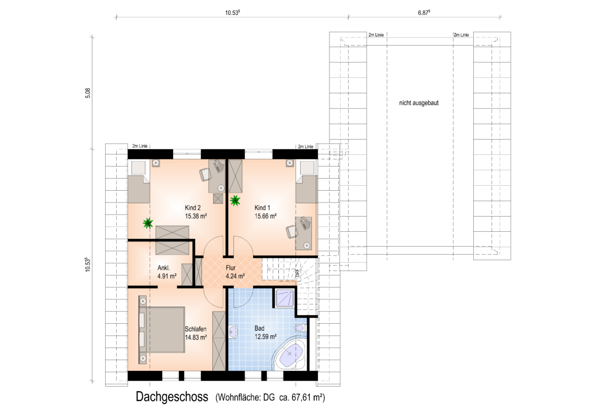
| Badezimmer | 1 |
| Dachform | Satteldach |
| Gebäudetyp | Giebelhaus |
| Geschosse | 2 |
| Nutzfläche | 151 m² |
| Schlafzimmer | 3 |
| Sonstiges | Treppe im Eingangsflur |
| Volumen | 633 m³ |
| Länge | 10,1 m |
| Breite | 10,5 m |
| Bruttogeschossfläche | 212 m² |



